Dom roka 2021 – kategória Individuálne domy

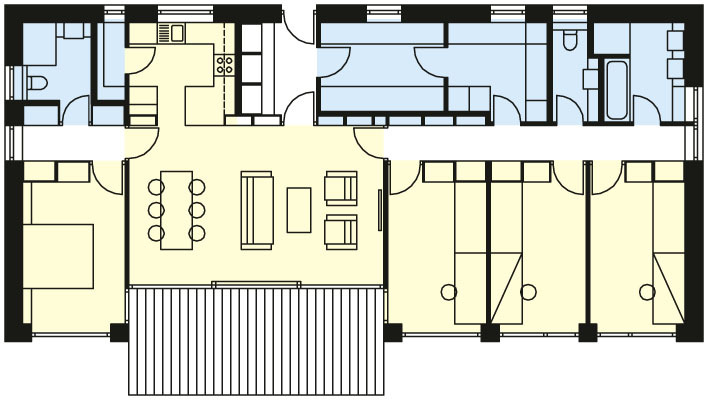
Jednoduchá prízemná stavba je úplne obrátená do záhrady, mierne zníženej oproti úrovni ulice. Medzi okolitou zástavbou nie je takmer vidieť a ponúka príjemné súkromie. Aby nebol narušený jednoduchý kompaktný tvar, čiastočne terasu tieni len ľahká plachta. Dom má technologicky nepríliš náročný konštrukčný systém z dierovaných tehál s vonkajším kontaktným zateplením a stropom z predpätých panelov, energetickú úspornosť stavby zvyšuje riadené vetranie s rekuperáciou tepla. Základom úspornosti je jednoduchá a prehľadná dispozícia, ktorá maximálne využíva zastavanú plochu. Dom v tvare kvádra je pozdĺžnou chodbou rozdelený na severný trakt s hospodárskymi priestormi (zádverie, šatne, kúpeľne, WC a kuchyňa), obytné miestnosti sú orientované na juh. Francúzske okná na každom konci zaisťujú prirodzené denné osvetlenie, prepojenie so záhradou aj pozdĺžne prevetranie stavby. Farebná kombinácia je inšpirovaná 30. rokmi 20. storočia, rovnako ako racionálne usporiadanie celého domu. Modrobiela farebná kombinácia sa opakuje aj v interiéri, ktorý bol z prevažnej časti vyrobený na zákazku podľa návrhu architektov.
Úžitková plocha: 147 m2
Členstvo
Dočítali ste polovicu článku
Zvyšok je dostupný iba členom Klubu Rodinný dom.
Získajte okamžitý prístup ku všetkým článkom na rodinnydom.online a inšpiráciu pre stavbu alebo rekonštrukciu rodinného domu.
Členstvo zahŕňa
- ✓plný prístup ku všetkým článkom
- ✓ročenku Rodinný dom
- ✓skúsenosti a inšpiráciu ďalších stavebníkov
- ✓newsletter s najlepšími článkami
Členstvo je zadarmo, bez záväzkov a registrácia trvá menej ako 30 sekúnd.
Bonus pre stavebníkov
Zapojte sa do anonymného prieskumu
„Ako sa stavajú domy na Slovensku“
(STEM/MARK + časopis Můj dům)
a ako poďakovanie získate



