Dom roka 2023 – RD10

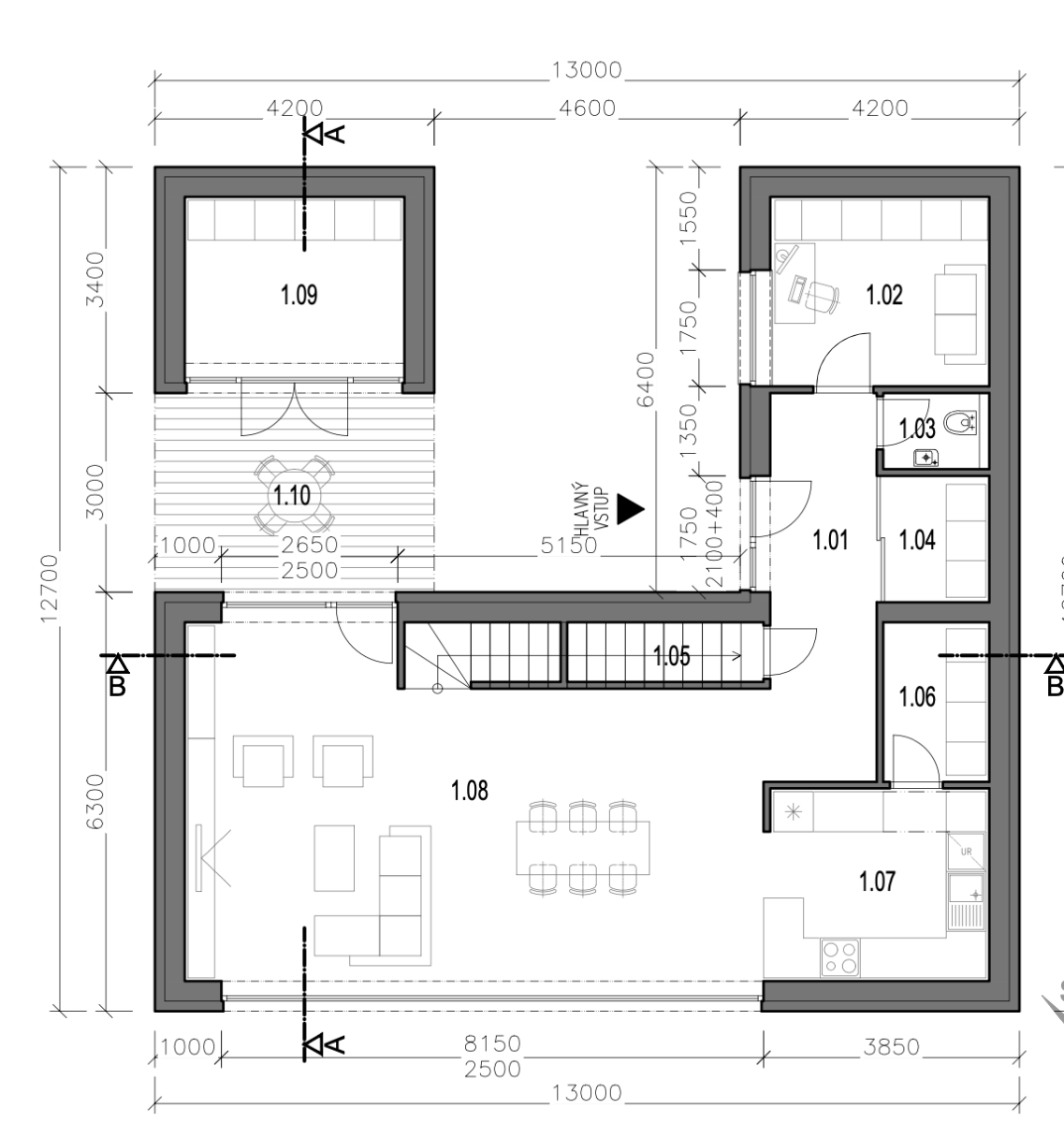
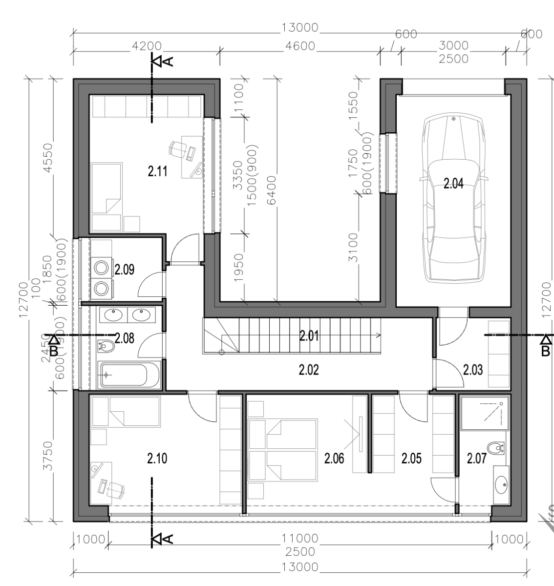
V obci Hôrky neďaleko Žiliny stojí originálna novostavba v tvare písmena U so 6 obytnými miestnosťami. Novostavba z tehál, na zateplenie ktorej sa použil polystyrén s hrúbkou 20 cm. Fasádu tvorí štruktúrovaná biela silikónová omietka skombinovaná s kamenným obkladom. Netradičným prvkom pri vchode do domu je stena pokrytá popínavými rastlinami. Súčasťou fasády sú aj zaujímavo ukladané drevené obklady. Na stavbe boli použité plastové okná INCON DESIGN s väčšou stavebnou hĺbkou v antracitovej farbe. Majú minimalistický dizajn a svojím vzhľadom pripomínajú hliníkové okná. Kuchyňa s obývačkou majú priamy kontakt s exteriérom, a to z dvoch strán. Na jednej strane je vstup na terasu do slnečnej časti záhrady, na druhej strane je chladnejšia terasa orientovaná dovnútra dispozície domu. Tá bola vytvorená v nadväznosti na samostatne oddelenú multifunkčnú miestnosť, z ktorej si rodina urobila domáce wellness.

Autor a realizátor stavby: DEVELOPA, s.r.o.

Členstvo

Dočítali ste polovicu článku

Zvyšok je dostupný iba členom Klubu Rodinný dom.

Získajte okamžitý prístup ku všetkým článkom na rodinnydom.online a inšpiráciu pre stavbu alebo rekonštrukciu rodinného domu.

Členstvo zahŕňa

  • plný prístup ku všetkým článkom
  • ročenku Rodinný dom
  • skúsenosti a inšpiráciu ďalších stavebníkov
  • newsletter s najlepšími článkami

Členstvo je zadarmo, bez záväzkov a registrácia trvá menej ako 30 sekúnd.

Bonus pre stavebníkov

Zapojte sa do anonymného prieskumu

„Ako sa stavajú domy na Slovensku“
(STEM/MARK + časopis Můj dům)

a ako poďakovanie získate

Ročné tlačené predplatné časopisu Můj dům zdarma v hodnote 999 Kč (cca 40 €)

Comments are closed.