Dom roka 2020 – kategória: Individuálne domy

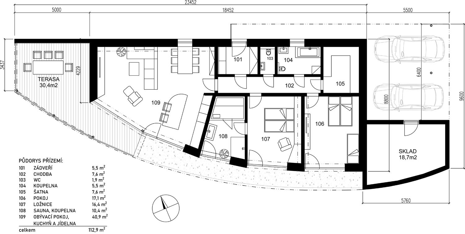
„Zelený“ tehlový dom s rozsiahlymi zasklenými plochami. Do oblúka prehnutá krivka celej južnej strany ho vťahuje do okolitej krajiny a poskytuje výhľady na tri svetové strany. Pretiahnutý obdĺžnikový pozemok, ktorý má na šírku sotva 16 metrov, inšpiroval architekta k atypickému objektu v tvare prehnutého luku, vďaka ktorému nemajú obyvatelia domu výhľady len ploché, ale doslova trojrozmerné. Celá južná stena domu je oblúková, najväčšiu dynamiku zaoblenia dosahuje oblúk v obývacej izbe.
Obytné podlažie nadväzuje na úroveň parcely pri príjazde, prechádza do krytej terasy, ktorá už je stĺpmi vynesená nad úrovňou záhrady a chránená sklenou stenou. Za zádverím je chodba a z nej sú prístupné všetky miestnosti, denná časť s kuchyňou, jedálenským kútom a zasklenou obývacou izbou smerujúcou na juh, aj ďalšie dve izby, toaleta, kúpeľňa a šatňa. Spálňa má vlastnú kúpeľňu so saunou.
Členstvo
Dočítali ste polovicu článku
Zvyšok je dostupný iba členom Klubu Rodinný dom.
Získajte okamžitý prístup ku všetkým článkom na rodinnydom.online a inšpiráciu pre stavbu alebo rekonštrukciu rodinného domu.
Členstvo zahŕňa
- ✓plný prístup ku všetkým článkom
- ✓ročenku Rodinný dom
- ✓skúsenosti a inšpiráciu ďalších stavebníkov
- ✓newsletter s najlepšími článkami
Členstvo je zadarmo, bez záväzkov a registrácia trvá menej ako 30 sekúnd.
Bonus pre stavebníkov
Zapojte sa do anonymného prieskumu
„Ako sa stavajú domy na Slovensku“
(STEM/MARK + časopis Můj dům)
a ako poďakovanie získate



